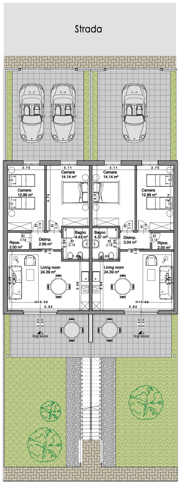
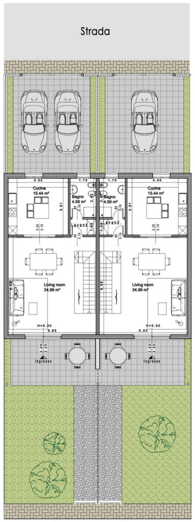
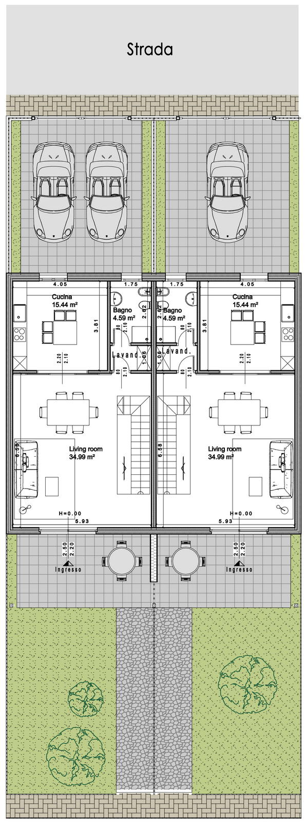
Il complesso edilizio è situato in Pizzo nella lottizzazione “Ambito 3” in via prov.le per S. Onofrio, in un lotto ampio dove sono state pensate delle abitazioni a schiera totalmente indipendenti dotate di grandi spazi e con un’area comune attrezzata con una piscina condominiale per garantire ampi svaghi.
Tutte le unità immobiliari godono di un comodo giardino e di posti auto privati, ampi terrazzi si aprono su un panorama vista mare mozzafiato. Grandi aperture garantiscono agli spazi interni una luminosità generosa, Gli ambienti dal concept moderno sono funzionali e spaziosi.
Vi sono due tipologia di abitazioni: